Image
Bijkhoevelaan 3
Image
Bijkhoevelaan 3
Basis huurprijs
€7350.00
per maand excl BTW

Voor meer info

Contact mail
Contacteer ons

Bijkhoevelaan 3

Basis huurprijs
€7350.00
per maand excl BTW
Type ruimte
Description
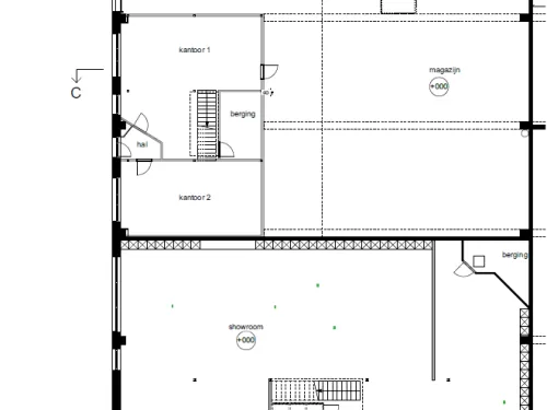
Oppervlakte: 1080m² (320m² magazijn met vrije hoogte van 6m, 380m² kantoor en 380m² showroom/kantoor)
Verwarming en koeling dmv warmtepomp.
OV inbegrepen in huurprijs.
Beschikbaar vanaf
01-05-2025
Bruto handelsoppervlakte
1080m²
Adres

Bijkhoevelaan 3
2110 Wijnegem
België

Contact formulier
Contact mail
ons